Каркасная баня «Каролина» 6x4.5

Хит
6X4.5 метра
В бане возможно поменять цвет, комплектацию и планировку.
  • Цена890 000 р.
  • Цена со скидкой800 850 р.
  • Доставкабесплатно
  • Разгрузкабесплатно
  • Сборкабесплатно
  • Фундаментбесплатно
спросить в
MAX
спросить в
Telegram
Изготовление 3-4 дня
Доставка 1 день
Оплата После доставки
Характеристики
  • АртикулСКБ 9
  • Размер6х4.5
  • Длина
  • Ширина4.5м
  • Площадь27
  • МатериалКаркас
  • Помещения3
  • Терраса Да
Примеры наших работ
Акция!
Группа компаний ПБК отмечает свой юбилей!
При заказе любой бани Вы получаете брендовую печь + подарок на выбор.

Варианты планировок

Комплектации:

Комфорт
890 000 руб. 800 850 руб.
Размеры
Указаны по наружным габаритам.
Фундамент
Блоки 200х200х400мм. На фундамент укладывается рубероид.
Обвязка
Двойная из бруса 150х100мм, обработана антисептиком.
Лаги
Доска 150х40мм с шагом 600мм обработана антисептиком.
Черновой пол
Сплошной из доски 20мм обработан антисептиком.
Ветро-влагозащита и пароизоляция
Эколайф “тип А”, Эколайф “тип В”.
Утепление пола, потолка
Минеральная вата типа КНАУФ, УРСА 50мм. В помещении со сливом в полу керамзит.
Чистовой пол
Шпунтованная доска камерной сушки 25-27мм монтируется по контррейке на саморезы. Пол стелется под уклоном к сливу.
Стены
Несущий каркас из доски 100х40мм с шагом 600мм обшит внутри вагонкой камерной сушки класса “В” (возможна стыковка, но не более одного стыка на стене) по контррейке на оцинкованные гвозди, снаружи вагонка класса “В” камерной сушки (возможна стыковка) по контррейке на оцинкованные саморезы. Утепление плитным утеплителем типа “Роквул”, “Кнауф” 100мм.
Покраска стен и доборов снаружи
Биотекс, цвет на выбор по каталогу.
Перегородки
Каркасно-щитовые обшиты вагонкой класса «В» камерной сушки (возможна стыковка, но не более одного стыка на одной стороне), монтируются на оцинкованные гвозди.
Парная
Фольга, осиновая вагонка класса «В» (возможна стыковка, но не более одного стыка на одной стене), монтируется по контррейке на оцинкованные гвозди.
Вентиляция
Отдушина в парном отделении. Вентрешётки во фронтонах.
Полок в парной
Двухуровневый из осиновой строганной доски 27х90мм. Ширина верхнего яруса 500мм, ширина нижнего яруса 400мм.
Потолок
В парном отделении - осиновая вагонка класса "В". В остальных помещениях - хвойная вагонка класса «В». Вагонка камерной сушки крепится по контррейке на оцинкованные гвозди (возможна стыковка, но не более одного стыка). Высота от пола до потолка 2.1м +/- 50мм.
Окна
600х600мм и 800х800мм деревянные с двойным остеклением.
Дверь входная
Каркасная 1800х800мм обшита вагонкой класса «В» камерной сушки, с навесным замком, с деревянными ручками.
Дверь межкомнатная, для бань, в которых более 2-х отделений
Каркасная 1800х800мм обшита вагонкой класса «В» камерной сушки с деревянными ручками.
Дверь в парную
Банная клиновая 1800х700мм с деревянными ручками.
Наличники и плинтус
Углы бани, окна, двери снаружи - наличники прямые крашенные хвойных пород, Окна, двери внутри - наличники прямые хвойных пород. Плинтус внутри - в парном отделении осиновый, в остальных помещениях хвойный.
Крыша
Двухскатная или односкатная. Стропильная система из доски 40х100мм с шагом 600мм. Конек 600-800мм в зависимости от размера фронтона. Свесы крыши 200мм.
Кровля
Ветрозащита, контррейка, обрешетка 20мм, оцинкованный профлист с ветровыми планками.
Печь
Печь заводского производства "Каминика Мастер-12 с индикатором горения" с баком на трубе 50-55 л. Толщина металла в топке 6 мм. Выход сэндвич трубы в кровлю. Противопожарная защита вокруг печи - оцинкованная сталь.
Электрика
С кабелем НУМ в кабель-канале (цвет белый). Сечение кабеля: 3х2.5 на розетки, 3х1,5 на освещение. Розетки 1 шт. двойная в комнате отдыха, выключатели (2, 3 или 4, в зависимости от проекта) в комнате отдыха, светильники (кол-во в зависимости от кол-ва комнат) в каждом отделении, автоматы 6А и 16А в комнате отдыха. Примечание: электрика доставляется в комплекте без монтажа.
Сантехника
Слив с жёлобом и водоприемной решеткой в моечном отделении.
Мебель
Переносная, в комнате отдыха скамейка 900х350мм, стол 900х700мм.
Терраса
Под общей крышей. Не утепленная. Со столбами, перилами, балясинами. Полы – доска строганная 36мм с зазором. Потолок - вагонка хвойных пород (возможна стыковка, но не более двух стыков), монтируется на оцинкованные гвозди.
Подарки
Вешалка, табличка, полка угловая, подголовник, камни, ступеньки.
Транспортировочная упаковка
Входит в стоимость.
Доставка
Входит в стоимость в радиусе 500км от производства.
Разгрузка
Входит в стоимость.
Сборка
Входит в стоимость.

Заказать баню

Нажимая кнопку “Получить консультацию”, Вы даете согласие на обработку ваших персональных данных

Каркасная баня «Каролина» 6x4,5

Готовая баня, возведенная по каркасной технологии, – просторная и светлая, дополненная уютной террасой. В ней приятно отдыхать зимой и летом, классический дизайн позволяет устанавливать баню на участках, оформленных в любом стиле. Она характеризуется долговечностью, удовлетворит требования большой семьи и обеспечит комфортный прием гостей.

Внешний вид

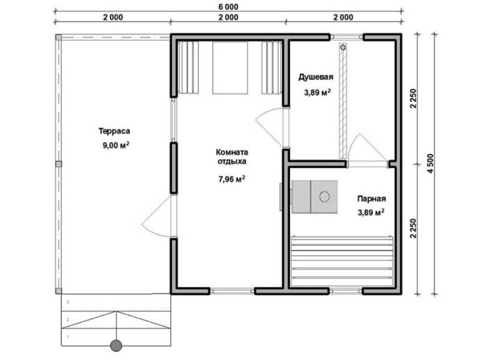
Всю боковую часть бани занимает прямоугольная терраса – просторное крытое пространство, защищенное от ветра, где приятно проводить время в кругу близких людей. Кровля – скатная, что необходимо для отвода осадков, на фасаде размещены 4 небольших окна, одна из сторон глухая – этой частью баню стоит повернуть к соседним участкам, чтобы достичь высокого уровня приватности.

Внутренняя планировка

Функциональная планировка обеспечивает полноценное зонирование: внутри – три помещения, разделенные распашными дверями. Преодолев входную группу, владельцы попадают в комнату отдыха (форма и площадь аналогичны террасе), где предусмотрены стол и скамьи, а также пространство для установки дополнительной мебели и свободного перемещения. Из комнаты отдыха путь ведет в моечную (в полу есть слив для воды), следующая зона – парная. В парной обустроена надежная печь, которая отлично отапливает все внутренние помещения и медленно остывает, а также лежаки.

Широкий выбор бань от производителя с доставкой по РФ

Компания «ПБК-Плюс» предлагает каркасные бани 6х2,25, 6x4,5 и другой площади, дополненные террасами, верандами. Легко подобрать проект под любой бюджет! Действуют лояльные цены производителя, снижающиеся в период проведения акций. К каждому проекту – полезные подарки, баню можно приобрести в кредит. Выполняем все работы – от изготовления материалов до установки на участке, не взимая обязательную предоплату. Для получения дополнительной информации о проекте – заполните форму обратного звонка.

Отзывы

Мобильная баня из бруса «Анастасия» 6x2.25 м во Владимирской области
01.11.2025
читать отзыв
Мобильная баня и из бруса «Аза» 6x2.25 м в респ. Карелия
27.10.2025
читать отзыв
Мобильная каркасная баня «Дионисия» 6x2.25 м в Ленинградской области
19.10.2025
читать отзыв
Мобильная баня и из бруса «Юлия» 4x2.25 м в Московской области
30.09.2025
читать отзыв
Мобильная каркасная баня «Вероника» 6x2.25 м в Ленинградской области
19.09.2025
читать отзыв
Мобильная баня и из бруса «Юлия» 4x2.25 м в Ленинградской области
10.09.2025
читать отзыв

Построенные объекты

Баня каркасная «Юнона» 6х4.5 м со сборкой в Ленинградской области
28.10.2025
смотреть фотоотчёт
Каркасная баня 5х4 м «Юнона» со сборкой в Московской области
27.04.2023
смотреть фотоотчёт
Каркасная баня 6х4,5 м «Каролина» со сборкой в Курской области
22.02.2023
смотреть фотоотчёт
Каркасная баня 6х4,5 м «Каролина» со сборкой в Вологодской области
09.12.2022
смотреть фотоотчёт
Каркасная баня 6х4,5 м «Юнона» со сборкой в Тверской области
03.08.2022
смотреть фотоотчёт
Каркасная баня 6х4,5 м «Каролина» со сборкой в Тверской области
17.07.2022
смотреть фотоотчёт

Похожие объекты

5X4 метра
Просмотры: 7024
Арт: СКБ 2/1
Каркасная баня «Алина» 5x4
от 
792 700
 р.
от 
713 450
 р.
Выгода: 79 250 р.
В кредит от 12 500 р.
6X4.5 метра
Просмотры: 12421
Арт: СКБ 6
Каркасная баня «Лада» 6x4.5
от 
871 900
 р.
от 
784 700
 р.
Выгода: 87 200 р.
В кредит от 13 800 р.
6X3 метра
Просмотры: 12749
Арт: СКБ 6/2
Каркасная баня «Августа» 6x3
от 
800 100
 р.
от 
720 100
 р.
Выгода: 80 000 р.
В кредит от 12 600 р.
6X3 метра
Просмотры: 5750
Арт: СКБ 6/1
Каркасная баня «Констанция» 6x3
от 
798 000
 р.
от 
718 200
 р.
Выгода: 79 800 р.
В кредит от 12 600 р.
6X4.5 метра
Просмотры: 8525
Арт: СКБ 7
Каркасная баня «Ульяна» 6x4.5
от 
885 600
 р.
от 
797 050
 р.
Выгода: 88 550 р.
В кредит от 14 000 р.
5х4 метра
Просмотры: 5665
Арт: СКБ 2
Каркасная баня «Ефимия» 5х4
от 
846 600
 р.
от 
761 900
 р.
Выгода: 84 700 р.
В кредит от 13 400 р.
7X4.5 метра
Просмотры: 7074
Арт: СКБ 5/1
Каркасная баня «Эльмира» 7x4.5
от 
927 800
 р.
от 
835 050
 р.
Выгода: 92 750 р.
В кредит от 14 700 р.
6X4.5 метра
Просмотры: 5885
Арт: СКБ 8
Каркасная баня «Долорес» 6x4.5
от 
916 200
 р.
от 
824 600
 р.
Выгода: 91 600 р.
В кредит от 14 500 р.
arrow