Мобильная каркасная баня «Елизавета» 6x2.25

6 метров
В бане возможно поменять цвет, комплектацию и планировку.
  • Цена458 000 р.
  • Цена со скидкой412 000 р.
  • Доставкабесплатно
  • Разгрузкабесплатно
  • Фундаментбесплатно
спросить в
MAX
спросить в
Telegram
Изготовление 3-4 дня
Доставка 1 день
Оплата После доставки
Характеристики
  • АртикулМКБ 3/3
  • Размер6х2.25
  • Длина
  • Ширина2.25м
  • Площадь13.5
  • МатериалКаркас
  • Помещения2
  • Терраса Да
Примеры наших работ
Акция!
Группа компаний ПБК отмечает свой юбилей!
При заказе любой бани Вы получаете брендовую печь + подарок на выбор.

Варианты планировок

Комплектации:

Комфорт
458 000 руб. 412 000 руб.
Комбо
567 000 руб. 509 900 руб.
Комбо Плюс
690 000 руб. 620 900 руб.
Размеры
6х2.25м.
6х2.25м.
6х2.25м.
Фундамент
Блоки.
Блоки.
Блоки.
Утепление пола и лаги
50мм - керамзит в помещении со сливом.
50мм - рулонный утеплитель в остальных помещениях.
Лаги - 100мм.
100мм - керамзит в помещении со сливом.
100мм - рулонный утеплитель в остальных помещениях.
Лаги - 100мм.
100мм - керамзит в помещении со сливом.
100мм - плитный утеплитель в остальных помещениях.
Лаги - 100мм.
Утепление потолка
50мм - рулонный утеплитель.
100мм - рулонный утеплитель.
100мм - плитный утеплитель.
Отделка пола
Шпунтованная доска 27мм.
Шпунтованная доска 36мм.
Шпунтованная доска 36мм.
В помещении со сливом - лиственница 27мм.
Пиломатериал
Естественной влажности.
Каркас - камерной сушки.
Весь пиломатериал - камерной сушки.
Стены
Каркасные.
Утепление 100мм.
Наружная отделка - имитация бруса.
Каркасные.
Утепление 100мм.
Наружная отделка - имитация бруса.
Каркасные.
Утепление 100мм.
Наружная отделка - имитация бруса.
Перегородки
Каркасные.
Каркасные.
Каркасные.
Обработка бани внутри
Нет.
Нет.
Обработка всех деревянных изделий - Неомид бесцветный.
Покраска бани снаружи
Пинотекс.
Биотекс.
Биотекс в два слоя.
Отделка парного отделения
Осиновая вагонка класса "B".
Осиновая вагонка класса "А".
Осиновая вагонка класса "А" без стыков.
Отделка в других помещениях
Хвойная вагонка класса "B".
Хвойная вагонка класса "B".
Хвойная вагонка класса "B".
Окна
Деревянные.
Деревянные.
Деревянный двухкамерный стеклопакет.
Дверь входная
Каркасная.
Металлическая.
ПВХ (2к).
Дверь в парную
Клиновая.
Стеклянная.
Стеклянная матовая.
Потолок
Аркой. Высота потолка 1.8-2м.
Аркой. Высота потолка 1.8-2м.
Аркой. Высота потолка 1.8-2м.
Крыша
Двухскатная. Высота конька - 400мм.
Двухскатная. Высота конька - 400мм.
Двухскатная. Высота конька - 400мм.
Кровля
Оцинкованный профлист.
Профлист. Цвет на выбор.
Металлочерепица. Цвет на выбор.
Печь
"Каминика Мастер-12 с индикатором горения".
Выход трубы в кровлю.
Бак на трубе - 55л.
Защита вокруг печи - оцинкованная сталь.
"Ермак 12-ПС Классика".
Выход трубы в кровлю.
Бак на трубе - 55л.
Защита вокруг печи - нержавеющая сталь.
"Ермак 12 Сетка-премиум".
Выход трубы в кровлю.
Бак на трубе - 55л.
Все комплектующие и защита вокруг печи - нержавеющая сталь.
Полок
Двухуровневый из осины класса "В".
Без спинки.
Двухуровневый из осины класса "В".
Без спинки.
Двухуровневый из осины класса "А".
Спинка узорная.
Мебель
Собственного производства.
Собственного производства.
Заводского производства.
Подарки
Вешалка, табличка, полка угловая, подголовник, ступеньки, камни.
Вешалка, табличка, полка угловая, подголовник, ступеньки, камни - 2шт.
Вешалка, табличка, полка угловая, подголовник, ступеньки, камни - 5шт, банный комплект (варежка, шапочка, коврик).
Терраса
Не утепленная.
Отделка потолка - хвойная вагонка класса "В".
Не утепленная.
Отделка потолка - хвойная вагонка класса "В".
Не утепленная.
Отделка потолка - хвойная вагонка класса "В".
Вентиляция
Деревянная отдушина в парном отделении и комнате отдыха.
Деревянная отдушина в парном отделении и комнате отдыха.
Анемостат в парном отделении и комнате отдыха.
Сантехника
Слив с жёлобом и водоприемной решеткой.
Слив с жёлобом и водоприемной решеткой.
Слив с жёлобом и водоприемной решеткой.
Электрика
Двойная розетка в комнате отдыха - 1шт.
Отдельный выключатель на каждое помещение.
Светильник в каждом помещении.
Цвет электрики - белый.
Двойная розетка в комнате отдыха - 1шт.
Отдельный выключатель на каждое помещение.
Светильник в каждом помещении.
Цвет электрики - белый.
Двойная розетка в комнате отдыха - 1шт.
Отдельный выключатель на каждое помещение.
Светильник в каждом помещении.
Дополнительная подсветка над полками с деревянными абажурами.
Цвет электрики - сосна.
Доставка
500км от производства. Бесплатно.
500км от производства. Бесплатно.
500км от производства. Бесплатно.
Разгрузка
Бесплатно.
Бесплатно.
Бесплатно.
🛈
Примечание к комплектации
Примечание для строительства МКБ, если иное не указано в спецификации.
Размеры бани указаны по наружным габаритам.
Размер фундаментных блоков 200х200х400мм.
Всегда кладем рубероид. Даже если фундамента нет.
Обработка всего основания антисептиком.
Пароизоляция, ветро-влагозащита и фольга марки Эколайф, проклеивается скотчем.
Утеплитель стен - плитный утеплитель.
Отделка пола в каждом помещении отдельно. Крепление каждая 5 доска на саморез. Под перетяжку.
Отделка внутри - крепление оцинкованные гвозди. Возможна стыковка.
Все отделочные материалы: вагонка, имитация бруса, шпунт, плинтус, наличник и т.д. - камерной сушки.
Покраска бани осуществляется в один слой.
Ориентация отделки внутри- вертикальная, снаружи - горизонтальная.
Электрика - кабель НУМ, сечение 3х1.5 - освещение, 3х2.5 - розетки. В комнате отдыха установлены автоматы 6А и 16А. У входной двери выведен кабель для наружного подключения к сетям.
Перед отгрузкой, баня запаковывается транспортировочной пленкой.
Монтаж кровли осуществляется на обрешетку, через контробрешетку.
Стропильные фермы, лаги и стойки каркаса из строганного пиломатериала, монтируются с шагом не более 600мм.
Углы бани, наличники окон и дверей - деревянные, прямые, хвойных пород.
Отделка пола, потолка, стен снаружи и внутри осуществляется через контррейку.
Чистовая высота бани имеет погрешность +-50 мм, в зависимости от отделки.

Заказать баню

Нажимая кнопку “Получить консультацию”, Вы даете согласие на обработку ваших персональных данных

Каркасная мобильная баня 6х2,25 – большой проект для ценителей парной

Каркасная мобильная баня «Елизавета» – воплощение изысканного дизайна экстерьера и высокой эргономики планировки. В основе – натуральные материалы, грамотное распределение пространства и обеспечение доступа естественного освещения, повышающего энергоэффективность. Баня придется по душе людям, которые любят проводить время в парной, как в кругу друзей, так и семьи.

Внешний вид

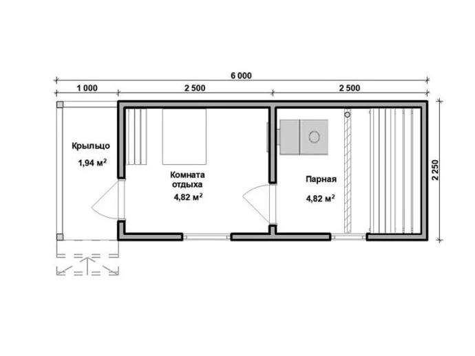
Изюминка прямоугольной бани – крытое и огороженное крыльцо, на котором приятно отдыхать при теплой погоде. На наружной лицевой стороне уютно расположились два квадратных окна разного размера боковые и задняя части – глухие, что необходимо для сохранения приватности. На скатной кровле не скапливаются снег и влага, есть дымоход. Крыльцо дополнено двумя широкими ступенями, по которым удобно подниматься и взрослым, и детям.

Внутренняя планировка

Баня имеет две функциональные зоны, разделенные распашными дверьми. Первая – большая комната отдыха, где традиционно устанавливают стол, стулья и другую мебель для полноценного релакса, на стенах – крючки для одежды и инвентаря. Вторая зона – парная, где можно насладиться целебными свойствами банных процедур: здесь есть печь, позволяющая выполнять обогрев и поддерживать благоприятный микроклимат, возле стены – лежаки для удобного размещения.

Каркасные мобильные бани с гарантией качества от производителя

Компания «ПБК-Плюс» занимает лидирующие позиции в области проектирования бань и выполнения последующего строительства. Имеем собственный завод для производства материалов и автопарк для осуществления доставки бань в разные регионы России. Строим без обязательной предоплаты, для снижения финансовой нагрузки предусмотрен кредит. Внесем изменения в проект по желанию Заказчика: напишите или позвоните нам, чтобы получить техническую консультацию и обсудить особенности бани Вашей мечты!

Отзывы

Мобильная баня из бруса «Анастасия» 6x2.25 м во Владимирской области
01.11.2025
читать отзыв
Мобильная баня и из бруса «Аза» 6x2.25 м в респ. Карелия
27.10.2025
читать отзыв
Мобильная каркасная баня «Дионисия» 6x2.25 м в Ленинградской области
19.10.2025
читать отзыв
Мобильная баня и из бруса «Юлия» 4x2.25 м в Московской области
30.09.2025
читать отзыв
Мобильная каркасная баня «Вероника» 6x2.25 м в Ленинградской области
19.09.2025
читать отзыв
Мобильная баня и из бруса «Юлия» 4x2.25 м в Ленинградской области
10.09.2025
читать отзыв

Построенные объекты

Баня каркасная «Злата» 7х2.25 м с доставкой во Владимирскую область
09.12.2025
смотреть фотоотчёт
Каркасная баня «Агриппина» 6х2.25 м с доставкой в Ленинградскую область
09.10.2025
смотреть фотоотчёт
Каркасная баня «Александра» 6х2.25 м с доставкой в Ленинградскую область
24.09.2025
смотреть фотоотчёт
Каркасная баня «Инна» 5х2.25 м с доставкой в Тверскую область
25.07.2025
смотреть фотоотчёт
Каркасная баня «Агриппина» 6х2.25 м с доставкой в Псковскую область
16.07.2025
смотреть фотоотчёт
Каркасная баня «Дионисия» 6х2.25 м с доставкой в Московскую область
18.04.2025
смотреть фотоотчёт

Похожие объекты

7 метров
Барн
Просмотры: 100650
Арт: Барн 5
Баня с панорамными окнами «Ждана» 7х2.25
от 
774 400
 р.
от 
697 000
 р.
Выгода: 77 400 р.
В кредит от 12 200 р.
5 метров
Просмотры: 3469
Арт: Сканди 2/3
Баня сканди каркасная «Свобода» 5х2.3
от 
597 800
 р.
от 
538 000
 р.
Выгода: 59 800 р.
В кредит от 9 400 р.
6 метров
Просмотры: 7903
Арт: Сканди 3/2
Мобильная баня в скандинавском стиле «Хельга» 6х2.3
от 
717 800
 р.
от 
646 000
 р.
Выгода: 71 800 р.
В кредит от 11 300 р.
5 метров
Просмотры: 2429
Арт: Сканди 2/8
Мобильная баня в скандинавском стиле «Герда» 5х2.3
от 
604 400
 р.
от 
544 000
 р.
Выгода: 60 400 р.
В кредит от 9 500 р.
7 метров
Просмотры: 4473
Арт: Сканди 5/2
Мобильная баня в скандинавском стиле «Бирна» 7х2.3
от 
774 400
 р.
от 
697 000
 р.
Выгода: 77 400 р.
В кредит от 12 200 р.
6 метров
Просмотры: 3780
Арт: Сканди 3/18
Мобильная баня в скандинавском стиле «Гера» 6х2.3
от 
742 200
 р.
от 
668 000
 р.
Выгода: 74 200 р.
В кредит от 11 700 р.
6 метров
Просмотры: 353
Арт: Барн 3
Мобильная баня барн «Челси» 6х2.25
от 
737 800
 р.
от 
664 000
 р.
Выгода: 73 800 р.
В кредит от 11 600 р.
5 метров
Просмотры: 6503
Арт: Сканди 2
Скандинавская перевозная баня «Светозара» 5х2.3
от 
637 800
 р.
от 
574 000
 р.
Выгода: 63 800 р.
В кредит от 10 100 р.
6 метров
Просмотры: 5156
Арт: Сканди 3/3
Мобильная баня в скандинавском стиле «Сюзанна» 6х2.3
от 
664 400
 р.
от 
598 000
 р.
Выгода: 66 400 р.
В кредит от 10 500 р.
arrow