Мобильная баня из бруса «Роксана» 8x2.25

8 метров
В бане возможно поменять цвет, комплектацию и планировку.
  • Цена524 000 р.
  • Цена со скидкой472 000 р.
  • Доставкабесплатно
  • Разгрузкабесплатно
  • Фундаментбесплатно
спросить в
Telegram
Изготовление 3-4 дня
Доставка 1 день
Оплата После доставки
Характеристики
  • АртикулМББ 8/3
  • Размер8х2.25
  • Длина
  • Ширина2.25м
  • Площадь18
  • МатериалПрофилированный брус
  • Помещения3
  • Терраса Сделаем по запросу
Примеры наших работ
Акция!
Группа компаний ПБК отмечает свой юбилей!
При заказе любой бани Вы получаете брендовую печь + подарок на выбор.

Варианты планировок

Комплектации

Комфорт
524 000 руб. 472 000 руб.
Комбо
655 000 руб. 589 900 руб.
Комбо Плюс
875 000 руб. 787 300 руб.
Размеры
Указаны по наружным габаритам.
Указаны по наружным габаритам.
Указаны по наружным габаритам.
Фундамент
Блоки 200х200х400мм. На фундамент укладывается рубероид.
Блоки 200х200х400мм. На фундамент укладывается рубероид.
Блоки 200х200х400мм. На фундамент укладывается рубероид.
Основание (сани)
Брус 150х100мм обработан антисептиком.
Брус 150х100мм обработан антисептиком.
Брус 150х100мм камерной сушки обработан антисептиком.
Лаги
Доска 100х40мм и брус 100х150мм с шагом 600мм обработаны антисептиком.
Доска 100х40мм и брус 100х150мм с шагом 600мм обработаны антисептиком.
Доска камерной сушки 100х40мм и брус камерной сушки 100х150мм с шагом 600мм обработаны антисептиком.
Черновой пол
Сплошной из доски 20мм обработан антисептиком.
Сплошной из доски 20мм обработан антисептиком.
Сплошной из доски 20мм камерной сушки обработан антисептиком.
Ветро-влагозащита и пароизоляция полов и крыши
Эколайф “тип А”, Эколайф “ тип В”.
Эколайф “тип А”, Эколайф “ тип В”.
Эколайф “тип А”, Эколайф “ тип В”.
Утепление пола, потолка
Минеральная вата типа КНАУФ, УРСА 50мм. В помещении со сливом в полу керамзит.
Минеральная вата типа КНАУФ, УРСА 100мм. В помещении со сливом в полу керамзит.
Базальтовый утеплитель типа КНАУФ или РОКВУЛ 100мм. В помещении со сливом в полу керамзит.
Чистовой пол
Шпунтованная доска толщиной 25-27мм монтируется по контррейке .на саморезы. В помещении, где слив, пол стелется под уклоном к сливу.
Шпунтованная доска толщиной 36мм монтируется по контррейке .на саморезы. В помещении, где слив, пол стелется под уклоном к сливу.
Шпунтованная доска толщиной 36мм монтируется по контррейке на саморезы. В помещении, где слив пол из лиственницы 28мм, стелется под уклоном к сливу.
Сруб
Брус профилированный 90х140мм естественной влажности (возможна стыковка). Обшивается только парная. Сборка сруба в теплый угол (в четверть) на металлические гвозди 200мм с углублением шляпки в брус. Между брусом прокладывается льноджутовое волокно. Примечание: брус не шлифуется, допускаются продольные несквозные трещины.
Брус профилированный 90х140мм камерной сушки (возможна стыковка). Обшивается только парная. Сборка сруба в теплый угол (в четверть) на металлические гвозди 200мм с углублением шляпки в брус. Между брусом прокладывается льноджутовое волокно. Примечание: брус не шлифуется, допускаются продольные несквозные трещины.
Брус профилированный 90х140мм камерной сушки (возможна стыковка). Обшивается только парная. Сборка сруба в теплый угол (в четверть) на металлические гвозди 200мм с углублением шляпки в брус. Между брусом прокладывается льноджутовое волокно. Примечание: брус не шлифуется, допускаются продольные несквозные трещины.
Обработка бруса внутри
Бесцветный неомид для бань и саун.
Бесцветный неомид для бань и саун.
Обработка сруба и всех деревянных изделий - бесцветный неомид для бань и саун.
Покраска бруса и доборов снаружи
Пинотекс, цвет на выбор - желтый, коричневый, синий, зелёный.
Биотекс, цвет на выбор по каталогу.
Биотекс, цвет на выбор по каталогу.
Перегородки
Каркасно-щитовые обшиты вагонкой класса «В» камерной сушки с двух сторон (возможна стыковка, но не более одного стыка на одной стороне), монтируются на оцинкованные гвозди.
Каркасно-щитовые обшиты вагонкой класса «В» камерной сушки с двух сторон (возможна стыковка, но не более одного стыка на одной стороне), монтируются на оцинкованные гвозди.
Каркасно-щитовые обшиты вагонкой класса «В» камерной сушки с двух сторон (без стыков), монтируются на оцинкованные гвозди.
Отделка парной
Фольга, осиновая вагонка класса «В» (возможна стыковка, но не более одного стыка на одной стене), монтируется по контррейке на оцинкованные гвозди.
Фольга, осиновая вагонка класса «А» (возможна стыковка, но не более одного стыка на одной стене), монтируется по контррейке на оцинкованные гвозди.
Фольга, осиновая вагонка класса «А» (без стыков), монтируется по контррейке на оцинкованные гвозди.
Вентиляция
Отдушина в комнате отдыха и в парном отделении.
Отдушина в комнате отдыха и в парном отделении.
Отдушина в комнате отдыха и в парном отделении.
Полок в парной
Двухуровневый из осиновой строганной доски 27х90мм. Ширина верхнего яруса 500мм, ширина нижнего - 400мм.
Двухуровневый из осиновой строганной доски 27х90мм. Ширина верхнего яруса 500мм, ширина нижнего - 400мм.
Двухуровневый из осиновой строганной доски. Ширина верхнего яруса 500 мм (с узорной спинкой), нижнего - 400 мм.
Потолок
В банях с двухскатной крышей - АРКОЙ, в банях с односкатной крышей - ПРЯМОЙ, В парном отделении - осиновая вагонка класса "В". В остальных помещениях - хвойная вагонка класса «В». Вагонка камерной сушки крепится по контррейке на оцинкованные гвозди (возможна стыковка, но не более одного стыка). Высота от пола до потолка в самом высоком месте 2м +/-50мм.
В банях с двухскатной крышей - АРКОЙ, в банях с односкатной крышей - ПРЯМОЙ. В парном отделении - осиновая вагонка класса "А" (возможна стыковка, но не более одного стыка). В остальных помещениях - хвойная вагонка класса «В». Вагонка камерной сушки крепится по контррейке на оцинкованные гвозди (возможна стыковка, но не более одного стыка). Высота от пола до потолка в самом высоком месте 2м +/-50мм.
В банях с двухскатной крышей - АРКОЙ, в банях с односкатной крышей - ПРЯМОЙ. В парном отделении - осиновая вагонка класса "А" (без стыков). В остальных помещениях - хвойная вагонка класса «В». Вагонка камерной сушки крепится по контррейке на оцинкованные гвозди (без стыков). Высота от пола до потолка в самом высоком месте 2м +/-50мм.
Окна
600х600мм деревянные с двойным остеклением.
600х600мм деревянные с двойным остеклением.
600х600мм деревянные двухкамерные стеклопакеты.
Дверь входная
Каркасная 1800х800мм обшита вагонкой класса «В» камерной сушки с двух сторон, с навесным замком, с деревянными ручками.
Металлическая 1800х800мм. Врезной замок с металлическими ручками.
Однокамерный ПВХ стеклопакет (стекло/панель) 1800х800мм с врезным замком. Цвет - белый.
Дверь межкомнатная, для бань, в которых более 2-х отделений
Каркасная 1800х800мм обшита вагонкой класса «В» камерной сушки с двух сторон, со шпингалетом, с деревянными ручками.
Каркасная 1800х800мм обшита вагонкой класса «В» камерной сушки с двух сторон, со шпингалетом, с деревянными ручками.
Каркасная 1800х800мм обшита вагонкой класса «В» камерной сушки с двух сторон, со шпингалетом, с деревянными ручками.
Дверь в парную
Банная клиновая 1800х700мм с деревянными ручками.
Стеклянная 1800х700мм с деревянными ручками.
Стеклянная матовая 1800х700мм с деревянными ручками.
Наличники и плинтус
Углы бани, окна, двери снаружи - наличники прямые крашенные хвойных пород, Окна, двери внутри - наличники прямые хвойных пород. Плинтус внутри в парном отделении осиновый, в остальных помещениях - хвойный.
Углы бани, окна, двери снаружи - наличники прямые крашенные хвойных пород, Окна, двери внутри - наличники прямые хвойных пород. Плинтус внутри в парном отделении осиновый, в остальных помещениях - хвойный.
Углы бани, окна, двери снаружи - наличники прямые крашенные хвойных пород, Окна, двери внутри - наличники прямые хвойных пород. Плинтус внутри в парном отделении осиновый, в остальных помещениях - хвойный.
Крыша
Двухскатная - конек 400мм или односкатная - конек 200мм. Стропила из доски 40х100мм или 40х150мм с шагом 600мм.
Двухскатная - конек 400мм или односкатная - конек 200мм. Стропила из доски 40х100мм или 40х150мм с шагом 600мм.
Двухскатная - конек 400мм или односкатная - конек 200мм. Стропила из доски камерной сушки 40х100мм или 40х150мм с шагом 600мм.
Кровля
Ветрозащита, контррейка, обрешетка 20мм, оцинкованный профлист с ветровыми планками.
Ветрозащита, контррейка, обрешетка 20мм, оцинкованный профлист с полимерным покрытием с ветровыми планками.
Ветрозащита, контррейка, обрешетка 20мм, металлочерепица с ветровыми планками.
Печь
Печь заводского производства "ЕРМАК-12" с баком на трубе 50-55 л. Толщина металла в топке 6 мм. Выход сэндвич трубы в кровлю. Противопожарная защита вокруг печи - оцинкованная сталь.
Печь заводского производства "ЕРМАК-12" с баком на трубе 50-55 л. Толщина металла в топке 6 мм. Выход сэндвич трубы в кровлю. Противопожарная защита вокруг печи - оцинкованная сталь.
Печь заводского производства "Ермак-12 ПС" с баком на трубе 50-55 л. Толщина металла топки 6мм. Выход сэндвич трубы в кровлю. Противопожарная защита вокруг печи - оцинкованная сталь.
Электрика
С кабелем НУМ в кабель-канале (цвет белый). Сечение кабеля: 3х2.5 на розетки, 3х1,5 на освещение. Розетки 1 шт. двойная в комнате отдыха, выключатели (2, 3 или 4, в зависимости от проекта) в комнате отдыха, светильники (кол-во в зависимости от кол-ва комнат) в каждом отделении, автоматы 6А и 16А в комнате отдыха. Выход кабеля для подключения к наружным сетям у входной двери. Примечание: при сборке на участке заказчика, электрика доставляется в комплекте без монтажа.
С кабелем НУМ в кабель-канале (цвет белый). Сечение кабеля: 3х2.5 на розетки, 3х1,5 на освещение. Розетки 1 шт. двойная в комнате отдыха, выключатели (2, 3 или 4, в зависимости от проекта) в комнате отдыха, светильники (кол-во в зависимости от кол-ва комнат) в каждом отделении, автоматы 6А и 16А в комнате отдыха. Выход кабеля для подключения к наружным сетям у входной двери. Примечание: при сборке на участке заказчика, электрика доставляется в комплекте без монтажа.
С кабелем НУМ в кабель-канале (Цвет сосна). Сечение кабеля: 3х2.5 мм на розетки, 3х1,5 мм на освещение. Розетки 1 шт, двойная в комнате отдыха. Выключатели в комнате отдыха, отдельный под каждое помещение. Светильники в каждом отделении. Автоматы 6А и 16А в комнате отдыха. Выход кабеля для подключения к наружным сетям у входной двери. Дополнительная подсветка над полками с декоративными деревянными абажурами. Примечание: при сборке на участке Заказчика, электрика доставляется в комплекте без монтажа.
Сантехника
Слив с жёлобом и водоприемной решёткой.
Слив с жёлобом и водоприемной решёткой.
Слив с жёлобом и водоприемной решёткой.
Мебель
Переносная, в комнате отдыха скамейка 900х350мм, стол 900х700мм.
Переносная, в комнате отдыха скамейка 900х350мм, стол 900х700мм.
Переносная заводского изготовления, в комнате отдыха скамейка 900х350мм, стол 900х700мм.
Подарки
Вешалка, табличка, полка угловая, подголовник, камни, ступеньки.
Вешалка, табличка, полка угловая, подголовник, камни, ступеньки.
Вешалка, табличка, полка угловая, подголовник, камни, ступеньки, банный комплект (варежка, шапочка, коврик).
Транспортировочная упаковка
Входит в стоимость.
Входит в стоимость.
Входит в стоимость.
Доставка
Входит в стоимость в радиусе 500км от производства.
Входит в стоимость в радиусе 500км от производства.
Входит в стоимость в радиусе 500км от производства.
Разгрузка
Входит в стоимость.
Входит в стоимость.
Входит в стоимость.
Установка на блоки
Входит в стоимость.
Входит в стоимость.
Входит в стоимость.

Заказать баню

Нажимая кнопку “Получить консультацию”, Вы даете согласие на обработку ваших персональных данных

Мобильная брусовая баня 8 метров

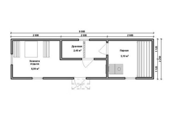
Брусовая баня «Роксана» 8х2,25 – большой проект, он станет идеальным выбором семьи или людей, которые часто принимают гостей. Форма бани позволяет размещать ее на участках любой конфигурации, проект отличается эргономикой в каждой детали и удобными планировочными решениями.

Внешний вид

Баня оформлена в классическом стиле, в дизайне экстерьера доминируют красота натурального дерева и изящные резные элементы. Центр бани – входная группа с дверью и ступенями, по которым без труда поднимется даже ребенок. Прямоугольный фасад дополнен крышей скатного типа, на ней возвышается дымоход. Предусмотрены четыре квадратных окна: они расположены так, чтобы солнечный свет свободно проникал во все комнаты.

Внутренняя планировка

Преодолев ступени и открыв входную дверь, владельцы попадают в комнату отдыха Г-образной формы: в ней установлен стол и скамьи (включены в цену проекта), при необходимости помещение можно дополнить системой для хранения вещей. Следующая зона – просторная душевая для принятия водных процедур в удобном положении: за отвод воды отвечает сток, расположенный в полу. Последнее помещение – парная, имеющая стандартное оформление: быстро прогревающая внутреннее пространство печь и широкие лежаки.

Купить баню из бруса 8х2,25 по цене производителя

Компания «ПБК-Плюс» располагает собственным производством брусовых и каркасных мобильных бань, отличающихся стабильно высоким качеством, долговечностью и надежностью. Наши Клиенты приобретают проекты без предоплаты, дополнительно – возможность оформления кредита. Действуют цены прямого производителя, снижающиеся во время проведения акций. Вы можете узнать о банях больше, запросить внесение изменений или консультацию, связавшись с нами удобным способом!

Отзывы

Мобильная баня и из бруса «Аза» 6x2.25 м в респ. Карелия
27.10.2025
читать отзыв
Мобильная каркасная баня «Дионисия» 6x2.25 м в Ленинградской области
19.10.2025
читать отзыв
Мобильная баня и из бруса «Юлия» 4x2.25 м в Московской области
30.09.2025
читать отзыв
Мобильная каркасная баня «Вероника» 6x2.25 м в Ленинградской области
19.09.2025
читать отзыв
Мобильная баня и из бруса «Юлия» 4x2.25 м в Ленинградской области
10.09.2025
читать отзыв
Баня из бруса «Джессика» 6x2.25 м в Псковской области
15.08.2025
читать отзыв

Построенные объекты

Мобильная баня из бруса «Елена» 6х2.25 м с доставкой в Вологодскую область
25.10.2025
смотреть фотоотчёт
Баня из бруса «Диодора» 6х2.25 м с доставкой в Московскую область
05.09.2025
смотреть фотоотчёт
Мобильная баня из бруса «Лиза» 8х2.25 м с доставкой в Ленинградскую область
11.08.2025
смотреть фотоотчёт
Мобильная баня из бруса «Елена» 6х2.25 м с доставкой в Краснодарский край
20.06.2025
смотреть фотоотчёт
Мобильная баня из бруса «Диодора» 6х2.25 м с доставкой в Тульскую область
16.06.2025
смотреть фотоотчёт
Баня из бруса «Клавдия» 2х2.25 м с доставкой в Ленинградскую область
11.05.2025
смотреть фотоотчёт

Похожие объекты

7 метров
Просмотры: 3694
Арт: МБП 5
Перевозная баня из бруса «Мальвина» 7.2х2.4
от 
578 900
 р.
от 
521 000
 р.
Выгода: 57 900 р.
В кредит от 9 100 р.
7 метров
Просмотры: 7793
Арт: МББ 4/1
Мобильная баня из бруса «София» 7x2.25
от 
457 800
 р.
от 
412 000
 р.
Выгода: 45 800 р.
В кредит от 7 200 р.
7 метров
Просмотры: 16226
Арт: МББ 5
Мобильная баня из бруса «Ева» 7x2.25
от 
461 100
 р.
от 
415 000
 р.
Выгода: 46 100 р.
В кредит от 7 300 р.
7 метров
Просмотры: 7084
Арт: МББ 4
Мобильная баня из бруса «Любовь» 7x2.25
от 
462 200
 р.
от 
416 000
 р.
Выгода: 46 200 р.
В кредит от 7 300 р.
7 метров
Просмотры: 4293
Арт: МББ 5/5
Мобильная баня из бруса «Дайна» 7х2.25
от 
467 800
 р.
от 
421 000
 р.
Выгода: 46 800 р.
В кредит от 7 400 р.
7 метров
Просмотры: 14861
Арт: МББ 5/2
Мобильная баня из бруса «Луиза» 7x2.25
от 
465 600
 р.
от 
419 000
 р.
Выгода: 46 600 р.
В кредит от 7 400 р.
7 метров
Просмотры: 4061
Арт: МББ 5/1
Мобильная баня из бруса «Ада» 7x2.25
от 
475 600
 р.
от 
428 000
 р.
Выгода: 47 600 р.
В кредит от 7 500 р.
7 метров
Просмотры: 4565
Арт: МББ 4/2
Мобильная баня из бруса «Валерия» 7x2.25
от 
474 400
 р.
от 
427 000
 р.
Выгода: 47 400 р.
В кредит от 7 500 р.
7 метров
Просмотры: 5112
Арт: МББ 5/4
Мобильная баня из бруса «Гелла» 7x2.25
от 
476 700
 р.
от 
429 000
 р.
Выгода: 47 700 р.
В кредит от 7 500 р.
arrow