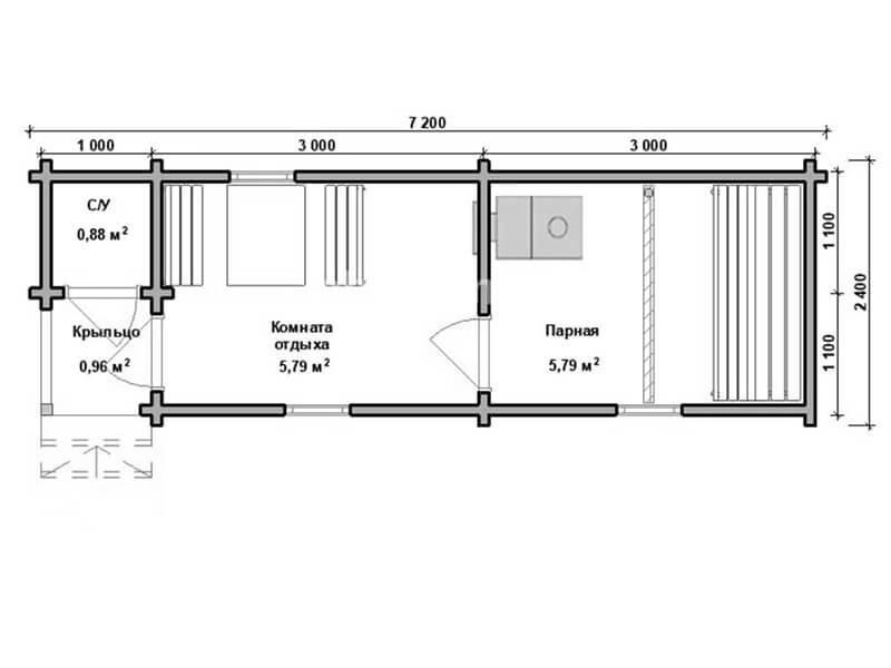
Мобильная баня из бруса в чашу «Степанида» 7.2х2.4

В бане возможно поменять цвет, комплектацию и планировку.
  • Цена629 000 р.
  • Цена со скидкой566 000 р.
  • Доставкабесплатно
  • Разгрузкабесплатно
  • Фундаментбесплатно
спросить в
Telegram
Изготовление 5-6 дней
Доставка 1 день
Оплата После доставки
Характеристики
  • АртикулМБП 4/2
  • Размер7.2х2.4
  • Длина7.2м
  • Ширина2.4м
  • Площадь17.28
  • МатериалПрофилированный брус
  • Помещения3
  • Терраса Да
Акция!
Группа компаний ПБК отмечает свой юбилей!
При заказе любой бани Вы получаете брендовую печь + подарок на выбор.

Варианты планировок

Комплектации:

Комфорт
629 000 руб. 566 000 руб.
Комбо
715 000 руб. 643 300 руб.
Комбо Плюс
931 000 руб. 837 800 руб.
Размеры
7.2х2.4м.
7.2х2.4м.
7.2х2.4м.
Фундамент
Блоки.
Блоки.
Блоки.
Утепление пола и лаги
50мм - керамзит в помещении со сливом.
50мм - рулонный утеплитель в остальных помещениях.
Лаги - 100мм.
100мм - керамзит в помещении со сливом.
100мм - рулонный утеплитель в остальных помещениях.
Лаги - 100мм.
100мм - керамзит в помещении со сливом.
100мм - плитный утеплитель в остальных помещениях.
Лаги - 100мм.
Утепление потолка
50мм - рулонный утеплитель.
100мм - рулонный утеплитель.
100мм - плитный утеплитель.
Отделка пола
Шпунтованная доска 27мм.
Шпунтованная доска 36мм.
Шпунтованная доска 36мм.
В помещении со сливом - лиственница 27мм.
Пиломатериал
Сруб - камерной сушки.
Сруб - камерной сушки.
Весь пиломатериал - камерной сушки.
Стены и перегородки
Брус профилированный 90х140мм. Прямой.
Брус профилированный 90х140мм. Прямой.
Брус профилированный 90х140мм. Прямой.
Обработка бани внутри
Обработка сруба - Неомид бесцветный.
Обработка сруба - Неомид бесцветный.
Обработка всех деревянных изделий - Неомид бесцветный.
Покраска бани снаружи
Пинотекс.
Биотекс.
Биотекс в два слоя.
Отделка в других помещениях
Потолок - хвойная вагонка класса "B".
Брус - не обшивается.
Потолок - хвойная вагонка класса "B".
Брус - не обшивается.
Потолок - хвойная вагонка класса "B".
Брус - не обшивается.
Окна
Деревянные.
Деревянные.
Деревянный двухкамерный стеклопакет.
Дверь входная
Металлическая.
Металлическая.
ПВХ (2к).
Дверь межкомнатная
Каркасная.
Каркасная.
Каркасная.
Дверь в парную
Клиновая.
Стеклянная.
Стеклянная матовая.
Потолок
Аркой. Высота потолка 1.8-2м.
Аркой. Высота потолка 1.8-2м.
Аркой. Высота потолка 1.8-2м.
Крыша
Двухскатная. Высота конька - 400мм.
Двухскатная. Высота конька - 400мм.
Двухскатная. Высота конька - 400мм.
Кровля
Оцинкованный профлист.
Профлист. Цвет на выбор.
Металлочерепица. Цвет на выбор.
Печь
"Ермак 12 Классика".
Выход трубы в кровлю.
Бак на трубе - 55л.
Защита вокруг печи - оцинкованная сталь.
"Ермак 12-ПС Классика".
Выход трубы в кровлю.
Бак на трубе - 55л.
Защита вокруг печи - нержавеющая сталь.
"Ермак 12 Сетка-премиум".
Выход трубы в кровлю.
Бак на трубе - 55л.
Все комплектующие и защита вокруг печи - нержавеющая сталь.
Полок
Двухуровневый из осины класса "В".
Без спинки.
Двухуровневый из осины класса "В".
Без спинки.
Двухуровневый из осины класса "А".
Спинка узорная.
Мебель
Собственного производства.
Собственного производства.
Заводского производства.
Подарки
Вешалка, табличка, полка угловая, подголовник, ступеньки, камни.
Вешалка, табличка, полка угловая, подголовник, ступеньки, камни - 2шт.
Вешалка, табличка, полка угловая, подголовник, ступеньки, камни - 5шт, банный комплект (варежка, шапочка, коврик).
Терраса
Не утепленная.
Столбы и ограждения из бруса.
Отделка потолка - хвойная вагонка класса "В".
Не утепленная.
Столбы и ограждения из бруса.
Отделка потолка - хвойная вагонка класса "В".
Не утепленная.
Столбы и ограждения из бруса.
Отделка потолка - хвойная вагонка класса "В".
Вентиляция
Деревянная отдушина в парном отделении и комнате отдыха.
Деревянная отдушина в парном отделении и комнате отдыха.
Анемостат в парном отделении и комнате отдыха.
Сантехника
Слив с жёлобом и водоприемной решеткой.
Слив с жёлобом и водоприемной решеткой.
Слив с жёлобом и водоприемной решеткой.
Электрика
Двойная розетка в комнате отдыха - 1шт.
Отдельный выключатель на каждое помещение.
Светильник в каждом помещении.
Цвет электрики - белый.
Двойная розетка в комнате отдыха - 1шт.
Отдельный выключатель на каждое помещение.
Светильник в каждом помещении.
Цвет электрики - белый.
Двойная розетка в комнате отдыха - 1шт.
Отдельный выключатель на каждое помещение.
Светильник в каждом помещении.
Дополнительная подсветка над полками с деревянными абажурами.
Цвет электрики - сосна.
Доставка
500км от производства. Бесплатно.
500км от производства. Бесплатно.
500км от производства. Бесплатно.
Разгрузка
Бесплатно.
Бесплатно.
Бесплатно.
🛈
Примечание к комплектации
Примечание для строительства МБП, если иное не указано в спецификации.
Размеры бани указаны по наружным габаритам.
Размер фундаментных блоков 200х200х400мм.
Всегда кладем рубероид. Даже если фундамента нет.
Профилированный брус собирается в чашу (переруб), на металлические гвозди, не шлифуется, допускаются несквозные трещины. Между венцами прокладывается льноджутовое волокно.
Обработка всего основания антисептиком.
Пароизоляция, ветро-влагозащита и фольга марки Эколайф, проклеивается скотчем.
Отделка пола в каждом помещении отдельно. Крепление каждая 5 доска на саморез. Под перетяжку.
Отделка внутри - крепление оцинкованные гвозди. Возможна стыковка.
Все отделочные материалы: вагонка, шпунт, плинтус, наличник и т.д. - камерной сушки.
Покраска бани осуществляется в один слой.
Ориентация отделки - вертикальная.
Электрика - кабель НУМ, сечение 3х1.5 - освещение, 3х2.5 - розетки. В комнате отдыха установлены автоматы 6А и 16А. У входной двери выведен кабель для наружного подключения к сетям.
Перед отгрузкой баня запаковывается транспортировочной пленкой.
Монтаж кровли осуществляется на обрешетку, через контробрешетку.
Стропильные фермы и лаги из строганного пиломатериала, монтируются с шагом не более 600мм.
Количество венцов в срубе с двухскатной кровлей - 15шт, с односкатной - 16шт.
Наличники окон и дверей - деревянные, прямые, хвойных пород.
Завод по своему усморению может усилить оконный или дверной проем ройками.
Отделка пола, потолка и парного отделения осуществляется через контррейку.
Чистовая высота бани имеет погрешность +-50 мм, в зависимости от отделки.

Заказать баню

Нажимая кнопку “Получить консультацию”, Вы даете согласие на обработку ваших персональных данных

Отзывы

Мобильная баня из бруса «Анастасия» 6x2.25 м во Владимирской области
01.11.2025
читать отзыв
Мобильная баня и из бруса «Аза» 6x2.25 м в респ. Карелия
27.10.2025
читать отзыв
Мобильная каркасная баня «Дионисия» 6x2.25 м в Ленинградской области
19.10.2025
читать отзыв
Мобильная баня и из бруса «Юлия» 4x2.25 м в Московской области
30.09.2025
читать отзыв
Мобильная каркасная баня «Вероника» 6x2.25 м в Ленинградской области
19.09.2025
читать отзыв
Мобильная баня и из бруса «Юлия» 4x2.25 м в Ленинградской области
10.09.2025
читать отзыв

Построенные объекты

Баня из бруса в чашу «Сабина» 6х2.25 м с доставкой в Московскую область
25.01.2026
смотреть фотоотчёт
Баня из бруса в чашу «Мальвина» 7х2.4 м с доставкой в Ленинградскую область
08.01.2026
смотреть фотоотчёт
Баня из бруса в чашу «Октябрина» 5.2х2.4 м с доставкой в Московскую область
16.12.2025
смотреть фотоотчёт
Баня из бруса в чашу «Домна» 5.2х2.4 м с доставкой в Ленинградскую область
08.11.2025
смотреть фотоотчёт
Баня из бруса в чашу «Октавия» 5х2.25 м с доставкой в Ленинградскую область
17.10.2025
смотреть фотоотчёт
Баня из бруса в чашу «Сабина» 6х2.4 м с доставкой в Ленинградскую область
07.08.2025
смотреть фотоотчёт

Похожие объекты

7 метров
Просмотры: 5577
Арт: МБП 5
Перевозная баня из бруса «Мальвина» 7.2х2.4
от 
614 400
 р.
от 
553 000
 р.
Выгода: 61 400 р.
В кредит от 9 700 р.
6 метров
Просмотры: 46217
Арт: МББ 3/3
Мобильная баня из бруса «Линда» 6x2.25
от 
451 100
 р.
от 
406 000
 р.
Выгода: 45 100 р.
В кредит от 7 100 р.
6 метров
Просмотры: 15238
Арт: МББ 3/5
Мобильная баня из бруса «Марина» 6x2.25
от 
454 400
 р.
от 
409 000
 р.
Выгода: 45 400 р.
В кредит от 7 200 р.
6 метров
Просмотры: 45924
Арт: МББ 3/2
Мобильная баня из бруса «Анастасия» 6x2.25
от 
458 900
 р.
от 
413 000
 р.
Выгода: 45 900 р.
В кредит от 7 200 р.
6 метров
Просмотры: 7715
Арт: МББ 3/1
Мобильная баня из бруса «Вера» 6x2.25
от 
463 300
 р.
от 
417 000
 р.
Выгода: 46 300 р.
В кредит от 7 300 р.
6 метров
Просмотры: 9500
Арт: МББ 3/11
Мобильная баня из бруса «Алла» 6x2.25
от 
464 400
 р.
от 
418 000
 р.
Выгода: 46 400 р.
В кредит от 7 300 р.
6 метров
Просмотры: 10391
Арт: МББ 3/9
Мобильная баня из бруса «Аза» 6x2.25
от 
464 400
 р.
от 
418 000
 р.
Выгода: 46 400 р.
В кредит от 7 300 р.
6 метров
Просмотры: 30870
Арт: МББ 3
Мобильная баня из бруса «Елена» 6x2.25
от 
464 400
 р.
от 
418 000
 р.
Выгода: 46 400 р.
В кредит от 7 300 р.
6 метров
Просмотры: 5359
Арт: МББ 3/12
Мобильная баня из бруса «Глафира» 6х2.25
от 
471 100
 р.
от 
424 000
 р.
Выгода: 47 100 р.
В кредит от 7 400 р.
arrow